Features
- Attractive 'Sussex Style' Detached House
- Prestigious West Purley Location
- Six Bedrooms (Five Doubles)
- Three Bath/Shower Rooms (Two En-Suite)
- Two Reception Rooms
- Substantial Kitchen/Dining Room
- Adjoining 23'5 Lounge
- 106' x 52' Level Rear Garden with Two Log Cabins
- Ample Driveway Parking and Garage
- Extending Over 3000 sq ft
FULL DESCRIPTION
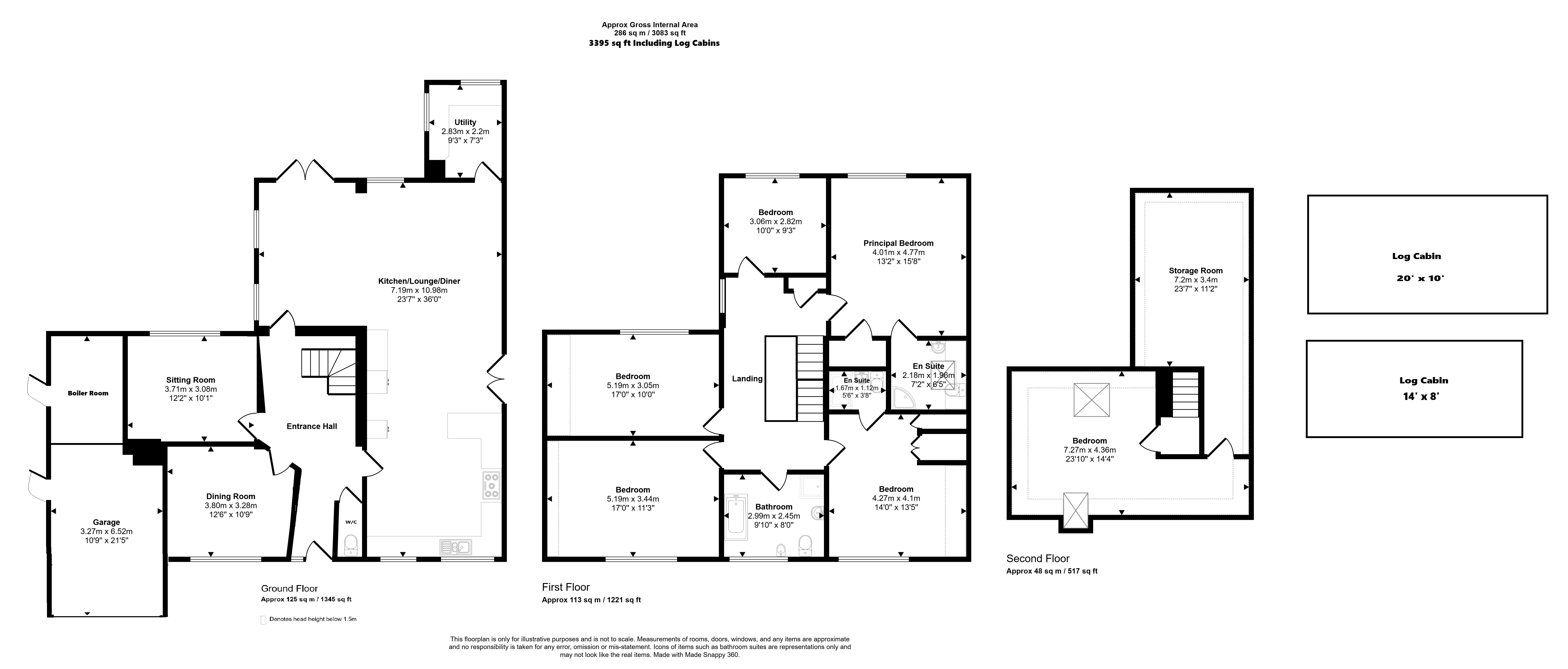
Full Description An extremely attractive 'Sussex Farmhouse' style detached property in this prestigious road on the favoured west side of Purley. This lovely home provides generous accommodation over three floors as well as a beautiful level rear garden, offering a superb socialising space for family and friends.
There is a spacious hall with cloakroom and oak flooring which is continued throughout the ground floor. There are two reception rooms with one to the front and one at the rear with an outlook to the patio and garden. It is however, the open plan kitchen/dining room and lounge that is the heart of the house which comprises a range of units with fitted work tops and peninsular style breakfast bar and integrated appliances to include a stainless steel range style cooker, dishwasher and fridge/freezer. There are double glazed windows to the front with double doors to the side. The lounge area stretches across the rear and is double aspect with windows to the side and double doors opening to the garden. A utility room with fitted desk area completes the ground floor. Upstairs, there are four double and one large single bedroom on the first floor with two ensuite shower rooms and a family bathroom with shower enclosure. A further staircase rises to the second floor with a fifth double bedroom and access to loft which presents scope for an additional bedroom and/or bath/shower room.
Outside, the rear garden extends to approximately 106' x 52' and is laid to a level lawn, enjoying a westerly aspect. There is a large patio, perfect for alfresco dining and entertaining, and fencing and trees to the boundaries. There are two log cabins in the rear garden and to the front there is a cobble style driveway for several cars, a neat, level lawn and garage.
THE PROPERTY Education
Purley and the surrounding areas are well known for their very good choice of reputable schools including Margaret Roper Catholic, St. Nicholas, Christ Church and Beaumont at primary level and preparatory schools to include Cumnor House, St. David's and Laleham Lea. At senior level there is John Fisher, Riddlesdown Collegiate and Woodcote and private sector senior schools in the area include Whitgift, Trinity, Old Palace and Croydon High. Local Grammar schools include Wallington County, Wallington Girls and Wilsons Boys.
Sports & Leisure
There are numerous facilities in the area including Purley Sports Club with its squash, cricket and tennis courts and there are two golf courses in Purley as well as a number of individual tennis and bowls clubs. There are also plenty of opportunities to relax and socialise in the many local restaurants and cafes.
Transport
Purley station provides rail services to London Bridge (from 25 minutes), London Victoria (from 24 minutes) and Gatwick (from 26 minutes) whilst Riddlesdown and Reedham will get you to London Bridge from 23 & 32 minutes and Victoria from 26 & 37 minutes respectively. Numerous bus services provide transport to all the surrounding and the M25/M23 intersection at Hooley is approximately 4-5 miles away. Gatwick and Heathrow Airports are within about 30 and 60 minutes drive respectively.
MATERIAL INFORMATION MATERIAL INFORMATION: Part B
PROPERTY CONSTRUCTION TYPE: Block
MAINS ELECTRICITY: Yes - Octopus
MAINS GAS: Yes - Octopus
MAINS WATER: Yes - SES
MAINS DRAINS & SEWERAGE: Yes - SES
HEATING FUEL: Gas
HEATING TYPE: Radiators
AIR CONDITIONING: No
PARKING: Private driveway and garage
EV CHARGING: No
BROADBAND: Cable - Virgin
MATERIAL INFORMATION: Part C
RESTRICTIONS/RESTRICTIVE COVENANTS: N/A
RIGHTS & EASEMENTS: N/A
FLOOD RISK: Very low
DETAILS OF PLANNING PERMISSIONS: Loft conversion
DETAILS OF BUILDING REGULATIONS: 09/15926 BN
BUILDING SAFETY: N/A
ACCESSABILITY/ADAPTIONS: N/A
COALFIELD/MINING AREA:
DETAILS OF PROPOSED DEVELOPMENT IN THE AREA:
Viewing
Please contact us on 0208 660 6674 if you wish to arrange a viewing appointment for this property, or require further information.
Energy Performance Certificate
Click here to view the Energy Efficiency Rating and Environmental Impact Rating for this property.
Disclaimer
Walter & Mair Estate Agents endeavour to maintain accurate depictions of properties in Virtual Tours, Floor Plans and descriptions, however, these are intended only as a guide and purchasers must satisfy themselves by personal inspection.
There is a spacious hall with cloakroom and oak flooring which is continued throughout the ground floor. There are two reception rooms with one to the front and one at the rear with an outlook to the patio and garden. It is however, the open plan kitchen/dining room and lounge that is the heart of the house which comprises a range of units with fitted work tops and peninsular style breakfast bar and integrated appliances to include a stainless steel range style cooker, dishwasher and fridge/freezer. There are double glazed windows to the front with double doors to the side. The lounge area stretches across the rear and is double aspect with windows to the side and double doors opening to the garden. A utility room with fitted desk area completes the ground floor. Upstairs, there are four double and one large single bedroom on the first floor with two ensuite shower rooms and a family bathroom with shower enclosure. A further staircase rises to the second floor with a fifth double bedroom and access to loft which presents scope for an additional bedroom and/or bath/shower room.
Outside, the rear garden extends to approximately 106' x 52' and is laid to a level lawn, enjoying a westerly aspect. There is a large patio, perfect for alfresco dining and entertaining, and fencing and trees to the boundaries. There are two log cabins in the rear garden and to the front there is a cobble style driveway for several cars, a neat, level lawn and garage.
THE PROPERTY Education
Purley and the surrounding areas are well known for their very good choice of reputable schools including Margaret Roper Catholic, St. Nicholas, Christ Church and Beaumont at primary level and preparatory schools to include Cumnor House, St. David's and Laleham Lea. At senior level there is John Fisher, Riddlesdown Collegiate and Woodcote and private sector senior schools in the area include Whitgift, Trinity, Old Palace and Croydon High. Local Grammar schools include Wallington County, Wallington Girls and Wilsons Boys.
Sports & Leisure
There are numerous facilities in the area including Purley Sports Club with its squash, cricket and tennis courts and there are two golf courses in Purley as well as a number of individual tennis and bowls clubs. There are also plenty of opportunities to relax and socialise in the many local restaurants and cafes.
Transport
Purley station provides rail services to London Bridge (from 25 minutes), London Victoria (from 24 minutes) and Gatwick (from 26 minutes) whilst Riddlesdown and Reedham will get you to London Bridge from 23 & 32 minutes and Victoria from 26 & 37 minutes respectively. Numerous bus services provide transport to all the surrounding and the M25/M23 intersection at Hooley is approximately 4-5 miles away. Gatwick and Heathrow Airports are within about 30 and 60 minutes drive respectively.
MATERIAL INFORMATION MATERIAL INFORMATION: Part B
PROPERTY CONSTRUCTION TYPE: Block
MAINS ELECTRICITY: Yes - Octopus
MAINS GAS: Yes - Octopus
MAINS WATER: Yes - SES
MAINS DRAINS & SEWERAGE: Yes - SES
HEATING FUEL: Gas
HEATING TYPE: Radiators
AIR CONDITIONING: No
PARKING: Private driveway and garage
EV CHARGING: No
BROADBAND: Cable - Virgin
MATERIAL INFORMATION: Part C
RESTRICTIONS/RESTRICTIVE COVENANTS: N/A
RIGHTS & EASEMENTS: N/A
FLOOD RISK: Very low
DETAILS OF PLANNING PERMISSIONS: Loft conversion
DETAILS OF BUILDING REGULATIONS: 09/15926 BN
BUILDING SAFETY: N/A
ACCESSABILITY/ADAPTIONS: N/A
COALFIELD/MINING AREA:
DETAILS OF PROPOSED DEVELOPMENT IN THE AREA:
Viewing
Please contact us on 0208 660 6674 if you wish to arrange a viewing appointment for this property, or require further information.
Energy Performance Certificate
Click here to view the Energy Efficiency Rating and Environmental Impact Rating for this property.
Disclaimer
Walter & Mair Estate Agents endeavour to maintain accurate depictions of properties in Virtual Tours, Floor Plans and descriptions, however, these are intended only as a guide and purchasers must satisfy themselves by personal inspection.
